12/21(日)【残り2組!】完成現場見学会@横浜みなとみらい(再販物件)
-
- 見学会
- イベント
- みなとみらい線 みなとみらい駅 徒歩3分 ※詳しい場所についてはご予約確定時にお知らせします。
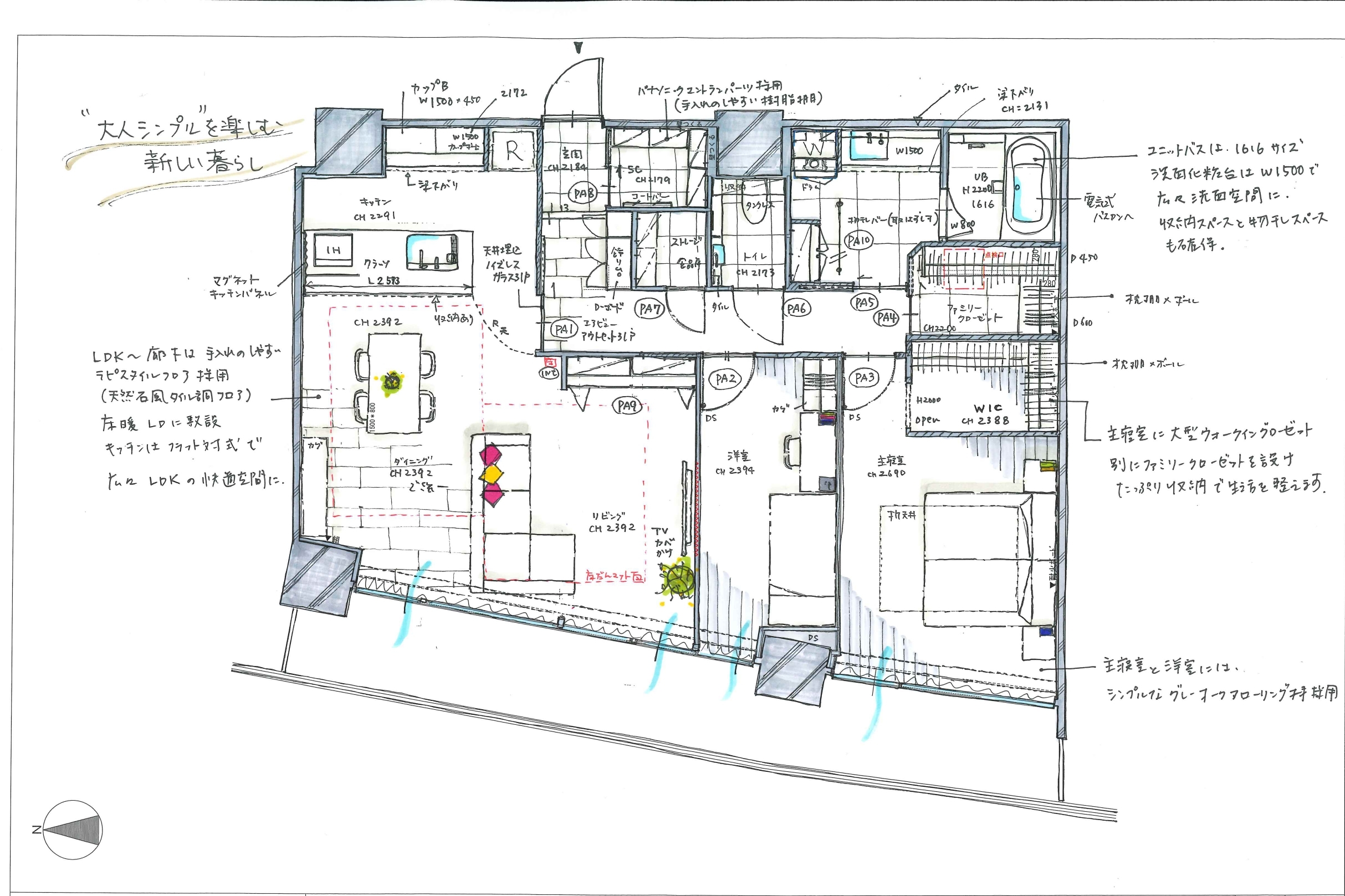
大人シンプルを楽しむ暮らし
~機能性に満ちた都市で人生を整える~
2025年12/21(日)1日限り、3組数限定でのリノベーション完成見学会を横浜 みなとみらい にて開催いたします。(横浜は、リノまま施工エリア外となっております為、ご注意ください)
「みなとみらい」の設備充実タワーマンションフルリノベーション。
必要な機能だけを厳選し毎日の暮らしを極上の快適と安心に変える、賢いアップデートリノベーション。
女性建築士による機能性を重視したキッチンや洗面設備、大容量のたっぷり収納、
そしてシンプルで洗練されたインテリアデザイン。 アイデアがたくさん詰まったリノベーションプランを是非ご覧ください。




<マンションの概要>
所在地:横浜 みなとみらい
専有面積:91.85㎡
築年数:築19年
開催情報
| ご案内 | <リノままの完成現場見学会とは?> 実際にリノままで設計・施工したリノベーションの完成現場をご覧いただける貴重な機会です! リノままでリノベーションされたお客様のご厚意によって工事の完成からお引渡しまでの限られた時間の中で、不定期に開催しています。 完全予約制・組数限定でのご案内とさせていただいておりますので、お早目にお申込みください。 |
|---|---|
| お願い | ●お手荷物は所定のビニールクロス上へ置いていただきますようお願い申し上げます。 ●携帯・スマホ等での撮影はご遠慮願います。万が一落としてしまうとお施主様の大切なお住まいに床キズが入ってしまうので、携帯・スマホ等を手にもってご覧いただくこともご遠慮いただいております。予めご了承ください。 ●ご来場時に手袋をお渡しします。室内では手袋、マスク着用の上でご覧ください。 ●誠に恐れ入りますが小さなお子様連れでのご来場はご遠慮ください。 |
| 日程 | 2025年12月21日(日)1日限定 15:00~18:00 ※45分毎、3組限定での見学会となります。申込時に●その他、自由欄に見学会希望、また希望のお時間を記載ください。①15:00満席 ②15:45~ ③16:30~ |
| 所要時間 | ※一組さまあたり45分程度を予定しております。 |
| 開催場所 | みなとみらい線 みなとみらい駅 徒歩3分 ※詳しい場所についてはご予約確定時にお知らせします。 |
| 料金 | 無料 |