東京都中野区/マンション/ワンストップ
専有面積: | 65m2 |
|---|---|
築年: | 1969年築 |
所在地: | 中野区 |
家族構成: | couple |
費用: | 500万円 |
Outline
Story
地下鉄丸ノ内線で新宿から3つめの駅「新中野」
都心に近いながらも、商業的活気は控えめ、閑静で落ち着いた街です。
また、中野通り沿いに歩くと15分程度でJR中央線の中野駅にも行けるという、
立地としては大変便利なエリア。
そんな新中野に、リノベーションによって唯一無二のご自宅が完成しました。
ご夫婦でリノままを尋ねてこられたときにはご自宅をつくるにあたってやりたいことがたくさん。
「お客様を招いたときに驚き、楽しんでもらえる空間にしたい!」
「間取りも内装も、オリジナリティを出したい!」
たくさんの"好き"に囲まれ、楽しさがあふれるご自宅のイメージが浮かびました。
やりたいことや好きなものはあるものの、具体的にそれを商品ひとつひとつに当てはめていく作業はとっても大変。
そこで、御苑ライブラリーのあらゆる本やカタログを用いて、イメージにぴったりくるものを探し出し、明確にしていく作業を行いました。
商品や仕様を決めていくうちに、
「これは絶対やりたい」ということと、
「これはなしでもいいかな」ということの整理整頓ができ、
最終的には、機能的・デザイン的に、ほんとうに必要なことだけを残しました。
既存を活かせるところはそのままに、やりたいことだけをしっかり取り入れることによって、費用面でも賢いリノベーションをすることができます。
そんな風に計画を立てたことによって、スタイリッシュで個性のあるご自宅に見えるものの、使い勝手のよいものとなりました。
そこに厳選されたこだわりを散りばめています。
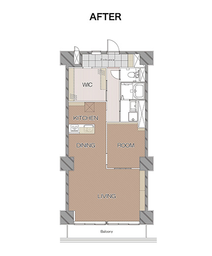
こちらのご自宅で印象的なのはカラフルな壁紙。玄関やウォークインクロゼット、お手洗いにそれぞれお気に入りのものをセレクトしました。
小さなスペースこそ、華やかな壁紙を貼ることによって、使う人を明るい気持ちにさせてくれます。
壁紙は塗装などに比べて、手軽に空間を演出してくれる優れもの。気分転換をしたいときには張り替えることが可能なのも嬉しいポイントです。

大きなウォークインクロゼットは将来的な子供部屋としての利用も想定し、十分な広さを取っています。
廊下側からも、玄関からも入ることが可能な回遊動線をつくりました。

広いDOMA風玄関には全身鏡を設置する予定とのこと。靴を履いた状態で全身の身だしなみ確認ができる。
ちょっとしたことに感じますが、新築や賃貸では玄関をコンパクトにまとめる事が一般的なため、意外に難しいことです。おしゃれなご夫婦らしい工夫ですね。
丁寧につくりこんだリビングはご友人の集う場所。たくさんのお客様を招いても窮屈にならないように広々とスペースを取りました。
いつか部屋を増やしたくなった時のために、リビングを二つに区切れるよう配慮しています。
音楽があると、より楽しい空間になる!と天井付のBOSEスピーカーを設置。

リビングへのこだわりはスピーカーだけではありません。

雰囲気づくりのキーポイントとなる打ち放し天井に、ななめに張られたフローリング。
ななめ張りのフローリングは、リノままライブラリーにある、海外のインテリア本から得たアイディアです。
床の貼り方ひとつで、印象ががらりと変わります。
リノベーションをする際に、計画の制約となりがちな大梁。こちらの物件ではリビングを横切る梁がありました。
なかなかの存在感です。
そこで、クロスの色にメリハリをつけたり、寝室の壁の位置を工夫して、梁の存在感をなるべく抑えられるような操作を行いました。
結果、ダイニングとリビングを柔らかく区切るちょうどよい梁になりました。

リビング隣の洋室は、打ち合わせの最初から案に出ていたアーチ形の入り口と内窓を施しました。
入口も窓も縁を黒くしたことによってしまりのあるスタイリッシュな印象となりました。

最初は断片的だった1つ1つのイメージが、実際に形になり、完成したご自宅にはお施主様も大満足されているとのこと。
居心地がよく、家にいるのが楽しいとおっしゃってくださいました。
個性を散りばめつつもフレキシブルな要素をふんだんに作り、オリジナリティあふれるご自宅はこれからも日々変化していくのでしょう。
また1年後、2年後とお伺いするのが楽しみです!
MSリノベーターより
Price
-
基礎工事
養生費、解体費、木工事、電気工事費、配管工事、等
約200万円
-
住宅設備機器
設備取外し・取付、エアコン設置 等
約30万円
-
材料費
無垢フローリング(オーク)、アクセントクロス、フロアタイル 等
約100万円
-
収納・造作工事
オープン可動棚(足場板)、造作窓、アール出入口、TV壁掛け金物、キッチン吊り棚、BOSEスピーカー 等
約170万円
工事費総額(税込)
約500万円
※工事費は竣工時点の税込額となっています。