理想のリノベーションの秘訣
リノベーションのプロに聞きました
- 公開日:2024.4.2
- 更新日:2024.4.3
リノままが2021年より3年連続で「TDYリモデルスマイル作品コンテスト(※)」にて「優秀賞」と「審査員奨励賞」を受賞し、2022年には「トクラス選手権」でも東京エリア賞を受賞いたしました。受賞した2作品の設計を担当した弊社設計士の李に、インタビュー形式で話を聞きました。
※「TDYリモデルスマイル作品コンテスト」:TOTO、DAIKEN、YKK APが主催する施工業者による優れたリモデル現場実例を競うコンテスト
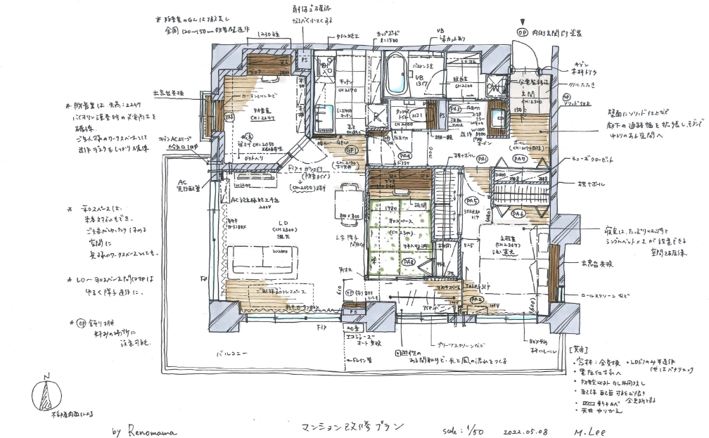
受賞作①『大満足!おうちも喜ぶワクワクリノベーション』

リノベーションのポイント
ダイニングにはたくさんの本を収納するための大きな本棚をおける空間とエアロバイクの置き場を、リビングにはウォークインクローゼットとリビング収納、そしてキッチンまわりにはパントリー、キッチン背面収納を設け、それぞれのモノの住所を決めました。必要な場所に必要なものをしまえるようにしたので、使うときも片付けるときもスムーズで、いつでもスッキリ片付く住まいに。
空間に余白が生まれ、よりお家時間をゆったり楽しめます。
インタビュー:設計担当 李
― 3年連続の受賞、おめでとうございます。口コミ投稿されるお客様からの声を読んでも、大変満足度が高いのが分かります。好評が続いているのはなぜでしょう。
李)「リノまま」は、リフォーム・建設業ではなく、サービス業だと考えています。「お客様と家族になる」という想いでお客様にスタッフ全員で向き合っているからです。
― 「お客様と家族になる」とは…?
李)お客様と設計士という関係はどうしても、設計士がお客様に教えるという上下の関係になりがちです。するとお互い言いたいことがはっきりと言えなくなってしまいます。私たちはお客様と何でも話せるような雰囲気を作り、お客様と家族のように接することができるよう努めています。家族であれば本音を言えますし、金銭のシビアな話や要望も言いやすいですよね。現場に入ると想定外のことが発生することもあるので、私たちは良いことも悪いこともすべて隠さずお客様に率直にお話をしています。
―それはやはり「リノまま」ならではの強みなのでしょうか?
私は当社に入社する前、数社のリノベーション会社を経験してきましたが、お客様と打ち合わせの後、リノベーションの設計や見積もりの提出を済ませたら、その後はすべて工事担当に任せてしまい、お客様との接点が終了するという会社がほとんどでした。リノままでは、物件探しから打ち合わせ、現地調査、工事から完成後のアフターケアまで一貫して同じスタッフで、お客様の住まい作りをお手伝いします。工事担当者もリノまま部員ですので、お客様に常に寄り添い伴走していく姿勢は同じです。
もちろん、何でも言い合える関係を築くためには、お客様からのどんな質問や要望にも適切に答えられる必要があります。そのためスタッフ全員が日々勉強や研究を欠かさないことも、お客様との信頼を築く上での大事なポイントです。
お客様と信頼関係が築けると、万が一リノベーションの工程でお互いの想いやプランにズレが生じてしまうことがあっても、円満な解決策が見つかるんです。
受賞作②『しあわせを奏でる家』

リノベーションのポイント
ヴァイオリンの演奏という共通の趣味があるお二人。これまでは、カラオケボックスや外などで練習されていたそう。そのため、近隣に気兼ねなく練習ができる防音室の設置をご希望でした。
お二人にとっては暮らしの一部であるヴァイオリンの練習スペースが違和感なく日常にとけ込むよう、防音室はリビングと繋るように。しっかりとした防音機能を備えながらも、スリットガラスの入った建具や、スリット窓でお互いの気配を感じられ、「ちょっと休憩してお茶にしようよ」「次は私ね」などお互いに声もかけやすくなっています。内装もリビングと合わせて、まるでリビングの一角のような空間に。

インタビュー:設計担当 李
ー お客様との忘れられないエピソードはありますか。
李)あるお客様のリノベーション打ち合わせ中に、お嬢様が韓国に留学されることになりました。私も留学経験があり、韓国に友人も多いので、お客様がお嬢様を私に紹介してくださり、韓国で私の家族と、お嬢様とで食事をご一緒しました。今でもお客様だけでなく韓国にいるお嬢様ともメールでやり取りしたりします。また、お客様から息子の成人式のお祝いをいただいたこともあります。一度家族のような関係となったお客様とは、ご縁を切らさず、ずっと住まいの相談をしていただける長い付き合いができると思っています。
ー それは素敵なお話ですね。
では、これからリノベーションをお考えのお客様に、お問い合わせからの流れを教えてください。
李)まずはお会いして1~2時間ほどじっくりお話を伺います。
リノベーションする物件を現地調査し、3週間ほどでプランや設計を立て、お見積と共にお客様に手書きの図面やパースもお付けしプレゼンします。ここまでは無料の範囲です。そこから依頼先を当社に決めていただけたら、2~3か月の間に2週間に1回程度、全5~6回のお打ち合わせをし、契約を交わし着工となります。
ー お客様からのお問い合わせから設計に進むまでは無料なのですね。その後、実際にリフォーム依頼に進むお客様の割合はどのくらいですか?
李)業界ではだいたい3割くらいですが、私の場合はおよそ9割です。「物件をリノベーションしていく様子を、とても丁寧に説明してもらえて、プロとしての安心感があったので、リノままに決めました」とお客様に言われます。当社の良さをより理解いただくために、当社比較(相見積)を必ずお願いしております。リノままがプランだけでなく見積をかなり細かく提示する点も、安心して選んでいただける理由だと思います。

ー 望みが叶うリノベーションになるように、お客様が準備しておくことはありますか。
李)特に必要ありません。今お持ちの不満や「どういう暮らしがしたいか」を、お客様は大まかに考えておいてくだされば充分です。ざっくばらんにお話を伺う内に、「キッチンを使いやすくしたい」「クローゼットをすっきりしたい」など、具体的に聞き出します。私たちはプロですので、お客様の要望を叶えるあっと驚くようなプランを作っていきますから、お客様は細かいことは決めなくても大丈夫です。
あまりに無理難題を言われるお客様は、当社からお断りすることもあります。お客様の言われることを全部言われるがまま承るのではなく、より良いリノベーションを目指して、時にはお客様とちょっとした喧嘩になることもありますよ(笑)、お互い本気で取り組んでいるので。お客様にも大きな金額を支払っていただくわけですから私も真剣になります。
ー リノままの今後の目標を教えてください。
李)リノままに関わる全ての人が幸せになることが目標です。お客様も、職人さんも、協力会社さんも。リノままと関わることで幸せになってくだされば、それが次へ次へと好循環で回っていきます。その結果としてリノままのファンが増え大きくなっていくと思うのです。
まとめ
今回は弊社設計担当の李にリノままについてのお話を聞いてみました。
暮らしというもののあり方、住まいとの関わり方が目まぐるしく変わり続ける時代の中で、私たちリノままはただ唯一、「お客様の想いに寄り添う」という点においては一貫していたいと考えております。
お客様の想いや設計士の想い、それを形にしていく職人達の想い、それらすべてが結集してできあがるのが、私たちリノままの考える「住まい」です。
今後とも「リノまま」をよろしくお願いいたします!
