メンテナンスしやすい家

東京都世田谷区/マンション/ワンストップ

専有面積:

59.03m2

築年:

1978年築

所在地:

世田谷区

家族構成:

couple

費用:

665万円

メンテナンスしやすい家
メンテナンスしやすい家
メンテナンスしやすい家
メンテナンスしやすい家
メンテナンスしやすい家
メンテナンスしやすい家
メンテナンスしやすい家
メンテナンスしやすい家
メンテナンスしやすい家
メンテナンスしやすい家

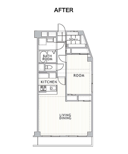
Outline

Story

せっかく想いをこめて造り上げる住まいだから長く大切にしたい。だから、メンテナンスを重視したリノベーションにしたい。

そんなお施主様には、メンテナンスが容易で、品質管理が行いやすい既製品をできるだけ多くご提案しました。

 

また、ご夫婦共通の趣味であるサイクリングをより楽しめるよう、玄関脇にはシューズインクローゼット兼、大切な自転車を置けるスペースを確保しました。

床は水はけのよいタイルで細部までメンテナンスのしやすさを追求しました。

 

メンテナン重視。さらには、コストコントロールしながらも、シンプルかつ雰囲気のある空間が実現しました。

Price

  • 基礎工事

    405万円

  • 住宅設備機器

    120万円

  • 材料費

    110万円

  • 収納・造作工事

    30万円

工事費総額(税込)

665万円

※工事費は竣工時点の税込額となっています。

オススメの関連事例