木と暮らす

東京都目黒区/マンション/持ち家リノベ

所在地:

目黒区

家族構成:

couple

費用:

1,065万円

木と暮らす
木と暮らす
木と暮らす
木と暮らす
木と暮らす
木と暮らす
木と暮らす
木と暮らす
木と暮らす
木と暮らす

Outline

Story

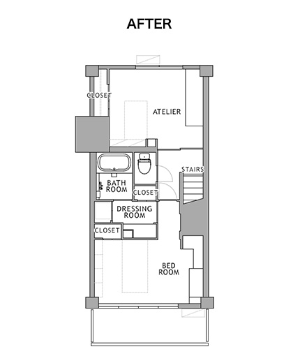
目黒区の邸宅外にひっそりと建築された低層マンション。

緑豊かなこの場所に建つメゾネットタイプのマンションで「木と暮らす」というお施主様のご要望がカタチになりました。

 

設計事務所を兼ねた住まいは、いつでも1階で打ち合わせができるように工夫がなされています。

ダイニングの入り口には扉を、さらにキッチンへの入り口に引き戸を設け、いつでも空間を区切り仕事モードに入ることができます。

キッチンの生活感がお客様に伝わらないのもうれしいポイントです。

 

お部屋の塗装はベージュがかった白を貴重に、余計なものを極力排除し、木の温もり・香り・親しみだけを感じる空間になりました。

 

オンとオフに区切りを付け、日々の疲れを住まいが癒してくれる。

「木と暮らす」の良さが改めて分かりました。

Price

  • 基礎工事

    (養生費、解体費、木工事、建具、電気配線工事、配管工事、オークフローリング)

    620万円

  • 住宅設備機器

    (ユニットバス、システムキッチン、造作オーク洗面台、給湯器)

    170万円

  • 材料費

    (洗面カウンター(オーク材)、壁面オーク材・スギ材仕上げ)、天井塗装、塗装、仕上げ)

    95万円

  • 収納・造作工事

    (オーク材造作家具、ブラインド、階段部分造作(オーク材・アイアン)、LED照明、カーテンレール、タオルリング等アクセサリー、火災報知器)

    180万円

工事費総額(税込)

1,065万円

※工事費は竣工時点の税込額となっています。

オススメの関連事例