【設計打合せ/プランとお見積りのご提示】~リノベーション設計図ができあがるまで~
- 公開日:2020.11.14
- 更新日:2023.11.20
リノベーションの設計ってどんなことをするのかよくわからない、何か難しそう、そんなイメージを持たれている方も多いのではないでしょうか?
ここでは設計の打ち合わせで実際に用いた資料などをもとにどんなことをやっているのかをみていきます。
リノベーションで使用する様々な図面と役割
設計の打ち合わせを「難しそう」と感じてしまうのはまず「図面」が沢山でてくるからでしょう。
お住まいのことを細かな点までしっかり決めてその通りにつくっていくには詳細な図面はどうしても必要です。
どんなものがあるのか、それぞれどんな役割があるのかをみておきましょう。
それぞれ「何のための図面か」がわかると設計の打ち合わせもスムーズに進められるようになります。
手書きプラン
最初の打ち合わせなどで、間取りを中心に、リノベーション後のお住まいのイメージをつかんでもらうために作成します。
不思議なもので手書きスケッチのような温かみのある図面をみているとそこでの暮らしがイメージできる、という方も多いです。
パース
図面をもとに完成予想図を立体的にあらわした図です。単に完成後の画というだけでなく、ソファーやテレビなどの家具も書き込んでみるとよりイメージがわいてきます。
既存図
リノベーション前の既存の状態での間取りや寸法、天井高などを示した平面図です。
この既存図をしっかり作成するためには物件の現地調査が非常に重要です。
改修図
リノベーション後の平面図です。詳細な寸法が入った状態で間取りなどが確認できます。
リノベーションの打ち合わせはこの「改修図」を元に進められます。
打ち合わせの内容やタイミングによってはこの改修図を基本に以下にあげる「展開図」や「電気図」「プレゼンシート」などを用いながらより詳細な内容を決めていきます。
電気図
コンセントなどの電源がどこにつくか、照明器具のスイッチはどのスイッチがどの照明に対応しているか、などが示されている図面です。
間取りや設備などが固まってきた後に、どこに何をおくか、どの部屋でどんなことをするか、といったお話をもとに具体的にスイッチの位置やコンセントの位置を決めていく際に使用します。
展開図
既存図、改修図、電気図はいずれも平面図です。平面図だけではどうしても高さなどはわかりません。造作家具のデザインや配置、室内窓のデザインや設置位置など、各方向から壁面をみた図面が必要な箇所を確認するために作成します。
プレゼンシート
壁や床などで使う素材や採用した設備などの詳細がわかる資料をまとめたものがプレゼンシートです。
図面だけではどんな素材を使うか、どんな設備がはいってくるか、が十分にイメージできないのでこれらを参照します。
この他、リノベーション会社や担当者によって、様々な追加資料を作成しているケースがあります。
ただ、こういった資料は多ければよい、というわけではありません。プランの内容によっても必要な資料は変わってきます。
いかにリノベーション後の様子がイメージしやすくするか、という工夫の一環です。
資料が徒に多すぎても迷路にはまってしまうだけなので、最低限の資料にしつついかにポイントを絞ってわかりやすくみせるか、は設計者の腕のみせどころなのです。
リノベーションの打ち合わせの流れ実例レポート
初プラン出し:ヒアリングで出た悩みを改善した提案図
事前のヒアリングでは、「どんな暮らしをしたいか」や「今のお部屋の間取りや設備が原因で生活しづらい部分」をお聞きしていきます。
※設計ヒアリングの内容は以下の記事をご覧ください
⇒リノまま【知る・調べる】【設計打合せ/ヒアリング】~リノベーションで解決できるお悩みをご紹介!~
この事例でも、「こんな理想の暮らしをしたい」や「今の家でこういう悩みがある」というご意見をいただき、それに沿って初プラン出しを行いました。
この時にリノままの設計担当からお客様にお渡ししているのが、
・平面プラン提案図とパース
・プレゼンテーション資料
・お見積り書
などなどです。
それぞれの資料紹介は追って行いますが、まずはプランのご提案の説明からしていきます。
今回ご紹介するのはこのお住まい。
○快適引き籠りライフ
所在地:渋谷区 / 間取り:ワンルーム / 1LDK / 専有面積:41.23㎡
築年:1970年01月(築47年) / 工事費:722万円 / 家族構成:single
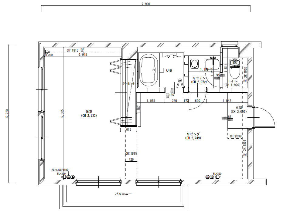
ちなみにこちらがリノベ前の状態。

>〈リノベーション前の間取り図〉
皆さんにとって、「あ、不便だな…」と感じる点はありましたか?
この事例で、実際に改善したいポイントとしてお客様から挙がったのはこんな点。
・玄関入ってすぐリビング!?
・キッチンが狭い!
・トイレはキッチンを通る??
・お風呂前に脱衣スペースがない!!!
こうやってみると結構個性的なつくりになっていますね(笑)
築古のマンションということもあり、今の暮らしには合っていないな…という点がたくさん。
また、こちらのお客様は、「お家で読書をしたり、映画を観たり、インドアな趣味を充実させたい」とのご希望でした。
「快適に引き籠れて、キュウクツに感じないお部屋」というのが今回のテーマに!
40㎡程度のお部屋ですが、窓が多いお部屋なので、自然光を部屋の隅々まで行き届かせることで、広々と解放感のある暮らしをご提案することになりました。
まずは、上記のポイントをクリアして、間取りに落とし込みました。
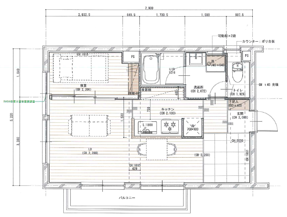
最初にお出ししたのがAプラン。

>〈プランA〉キッチンをお部屋の中心にあるプラン
既存の玄関入ってすぐリビングという形ではなく、一番奥に寝室と、リビングを配置したプランです。
ちゃんと洗面室も用意でき、水回りもまとまっています。
キッチンが対面式でバルコニーからの景色も眺められそうです。
ただ、このプランの場合は、玄関入ってすぐキッチンの通路が見えるため、何か対策をしないと食器棚あたりの雑多な感じが見えてしまいそうです!
また、キッチンがアイランド式に中心にあり、回りを一周できる回遊性があるというメリットの反面、実は配管を下に通すため、キッチンがステージのように一段上がってしまいます。
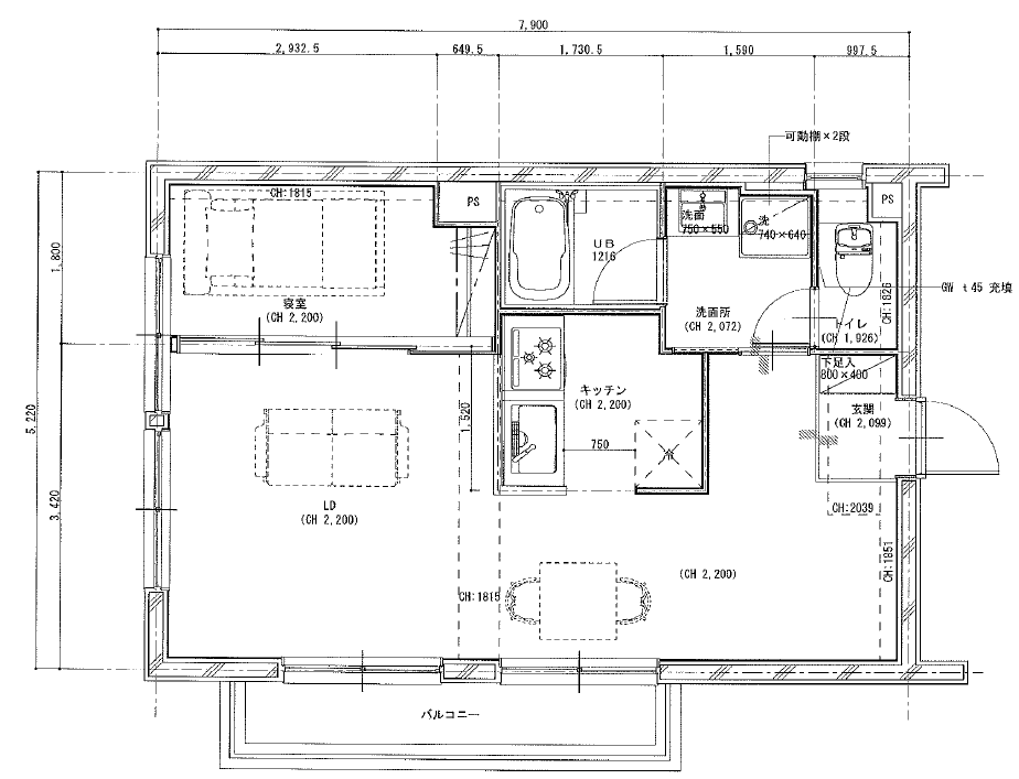
そこでもう一つキッチンの向きを変えたBプラン。

>〈プランB〉キッチンの向きを変えたプラン
こちらは玄関入ってすぐは冷蔵庫裏の壁があるのでキッチンは見えません!
しかも今回のキッチンは壁の中を通してを排水していくので、キッチンも段差ができません。
ただ、キッチンを囲ったスペースが真ん中にある為、全体的に解放感がありません。
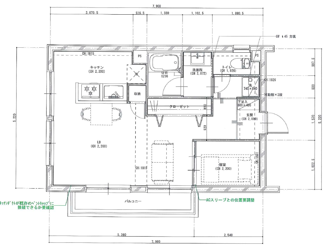
そして最後にCプラン。

>〈プランC〉キッチンを思い切り奥に移動したプラン
こちらは一番キッチンを奥にし、オープンキッチンにしたプラン。
キッチンにいてもリビングにいても景色も眺められ、広がりのある空間になっています。
玄関入った時に奥のリビングまで目線が通るので広さも感じられ、先ほどのマイナスポイントの目線や圧迫感もクリアできそうです。
どのようにプランを練っていくかはお客様のイメージの固まり方次第。
今回はリノベーションお打合せ段階のご紹介用に3つのプランを提案してみました。
このようにプランがいくつかあることで、プラン検討の比較がし易くなりますよね。
例えば、「全体はプランCがいいけど、プランAの方が、寝室にクロゼット収納があっていい」などなど。
自由度の高いリノベーションだからこそ、納得のいく決断をすることが大切。
いろいろな選択肢がある中で、「譲れない条件は?」「優先順位は?」と考えていき、「いちばん自分の理想の暮らしに合った間取り」を探っていきます。
なかなか当日に図面を理解するのは時間がかかるもの。
一旦、プランの細かいご要望はご自宅でじっくり見て頂き、考えて頂くことにしました。
次回のお打ち合わせの宿題です。
打ち合わせを重ねてブラッシュアップ!
大まかな間取りやプランについては1,2回で決まることが多く、それ以降は内装仕上げ、造作、電気・照明、インテリアなどなど打ち合わせが盛りだくさん!
打ち合わせの都度、磨きがかけられて、最終的なプランができます。

>〈最終的にできたプラン〉
最終的決定したのは、〈プランC〉をアレンジしたプラン。
このプランにたどり着いたキーワードは「臨機応変さ」!
冒頭にも書きましたが。このお部屋のテーマは「快適に引き籠れて、キュウクツに感じないお部屋」。
プランを考える上で、 1番の課題は「解放感とプライベート性の両立」でした。
「インドアな趣味を息苦しくならずにお家で満喫したい→自然光の入る広々としたリビングダイニング」
というのがいちばんの条件。
でもおひとり暮らしのお客様ためのお部屋なので、物件自体が約40㎡とコンパクト。
そのため、リビングダイニングに十分にスペースをとると、ワンルームのような間取りになり、
「配達などの来客の際、玄関からお部屋全体が見られてしまう…」
「冷暖房の効きが悪くなってしまう…」
「キッチンも同じ空間内なので、ベッド回りまで匂いや油飛びが気になるのでは…」
と悩まれていました。
解決したのは、3枚引き込み戸。

玄関ホールが部屋を圧迫することのないように、ベッドルームやリビングダイニングを仕切る壁を3枚引き込み戸に置き換えたことで、必要な時は閉めて、普段は思い切り開けて解放感も味わえるプランになりました。


広々過ごしたいときには扉は壁の中に収納でき、部屋として壁が欲しいときは引き戸で仕切れる臨機応変さ!
お客様は「欲張りな間取り二重生活を実現できて大満足」と喜んでくださいました。
また、より解放感を味わえるように天井を高くしたり、断熱や防音のために二重窓を設置したり、おうち時間を満喫できる仕掛けを用意しました。


他にも、お客様の趣味のカメラ機材やたくさんあるお洋服をごちゃごちゃさせずにすっきり収納できるよう、クローゼット収納を増やし、本や雑誌、Blu-rayを飾りながら整理できる造作棚をキッチン横に設置しました。
このように、ご提案のプランはヒアリングをもとに設計スタッフが考えてつくっています。
使い勝手や、収納が足りるかなどの生活イメージの視点のほか、断熱や冷暖房などのご要望によってはプランに影響が出る場合も。
特にキッチンやお風呂の形、サイズが変更になると、確実にプランを変えなくてはいけないので、前もってサイズ感をショールームで体感しておくなど、事前に確認しておくのがスムーズな打ち合わせのコツ。
打合せにおいて、些細なことでも、設計担当にお話いただけるように、私たちも心がけています。
〈プラン打ち合わせ時に必要なことリスト〉
・空間の広さを良く確認してみましょう。
・断熱対策、遮音対策などもプランに影響することがあるので確認しておきましょう。
⇒○快適に暮らす工夫③ ~断熱材編~
⇒○床と遮音性(1)
・キッチン、お風呂、トイレ、洗面台などの水回りはショールームで確認しましょう。
⇒○キッチンの種類いろいろ
⇒キッチン選びのポイント
⇒お風呂のサイズ、種類
⇒トイレの種類
⇒洗面台の種類、洗面室のレイアウト
・収納の使いやすさ、イメージをプラン上で生活をイメージしながら確認しましょう。
・壁にものをつけたい、間接照明をつかいたいなどプランに関わること
⇒照明器具の種類
⇒○リノべアイテム紹介【照明~LEDと白熱電球】
⇒○壁をデザインする ~いろんなアイデア編~
・扉、ドア、室内窓など建具の確認。
⇒建具の種類いろいろ
⇒室内窓
○快適に暮らす工夫 ① ~風通しの大切さ~
⇒開口の種類
パースやプレゼンテーション資料ってどんなもの?
プランと一緒にお出ししているのがパースやプレゼンテーション資料、どんなものなのかご紹介します。
まずパースとは、室内を立体的な絵にしたもの。
立体的に表現することで 、全体的な壁、床、天井と、空間のイメージがとても良くわかります。
↓こんな感じです。

>〈パースイメージ例〉
そしてお見積りのご説明を↓のようなプレゼンテーション資料やカタログ、実物サンプルを見ながらご説明しています。



>〈プレゼンテーション資料 例〉


>〈お打ち合わせ風景〉
実物のサンプルを見たり触ったりして、イメージに近い床材を探したり、違う素材を選んでコストダウンしたり…!
「床はこのくらいの色がいい」「寝室の床はタイルにしたい」「キッチンはこんなタイルを貼りたい」などなどイメージが膨らみます。
こんな感じでお打ち合わせは進んでいきます。
まとめ
プランのお打合せはリノベーションのベースになるのでとても重要です。
賃貸にお住まいの方は、今のキッチンや、お部屋などサイズ感を比較しても良いですし、既にお持ちの家をリノベーションの方は今の家と比較するのが一番良いかもしれませんね。
ショールームや完成現場など、プラン打ち合わせの前に見学してみたりするとより良いと思います。
プランが決まってきたら、次は電気配線関係のお打ち合わせ。
照明計画、空調計画などと合わせて考えていきます。
関連記事
〇物件を見るとき必携!リノベのプロがこっそり教える寸法豆知識 <平面編 その1>

内見のときは今住んでいる方の家具や荷物が沢山おいてあったり、
逆に何もないガランとしたお部屋だったり、なかなか「広さ」のイメージがつかめません。
リノベーションのプロは内見にいくときにさまざまなポイントを見ているもの。
その中であなた自身も今からすぐ使える「寸法」の豆知識をこっそりお知らせします。
「理想の暮らし」は「寸法」によって「現実の毎日」にぐっと近づきます!

壁を活かしてデザインにしたい、インテリアの雰囲気を変えたい。
そんなときに一番身近なのは壁紙。実は「壁紙」といってもバリエーションはものすごく豊富。
あとで知らなかった!なんてことが無いように、リノベ前に壁紙の種類を是非知っておいて頂くきっかけとなればと思い、いろんな壁紙と、私が使ってみて面白かった壁紙などをご紹介していきます!

リノベ会社ってどんなサイトみてもどこも同じに見える!
どうやって選べばいいかわからない!
そんなあなたに会社選びのヒントをこっそりお知らせします。
